صفحه نخست
درباره ما
تماس با ما
سوالات متداول
راهنمای خرید
قوانین و مقررات
پیگیری سفارش
اخبار و مقالات
ورود کاربران
ویرایش پروفایل کاربری
سفارشات من
پیگیری سفارشات
امتیازات من
لیست علاقه مندی ها
تغییر رمز عبور
خروج از حساب کاربری
محتویات سبد خرید
محصولات
پروفیل upvc
ویتانوا
هارمونی
وینتک
یراق
پلیسه
upvc
اسپانیولت
لولایی
کشویی
درب
دوحالته
لولا، کانکتور ، غلطک
کانکتور
غلطک ، بلبرینگ
جلد قفل
جلد قفل درب سوئیچی
جلد قفل درب سرویسی
دستگیره
دستگیره درب
دستگیره پنجره
درب بالکنی
آلومینیوم
گالوانیزه
اسپانیولت
ویتانوا
پروفیل upvc
هارمونی
پروفیل لنگه درب کوچک
پروفیل لنگه درب کوچک
لطفا انتخاب کنید
وضعیت :
تماس بگیرید
واحد :
معرفی محصول
مشخصات فنی
محصولات مرتبط
محصولات مشابه
سوالات متداول
نظرات کاربران
معرفی محصول
مشخصات فنی
سایر مشخصات
برند ها
vita nova
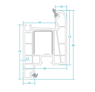
مشخصات عمومی محصول
جنس: یو پی وی سی با کیفیت بالا
نوار لاستیکی: کواکسترود شده برای اتصال دائم
رنگ: سفید (امکان تولید در رنگهای مختلف بر اساس سفارش)
شاخه 6متر طول
دوام: مقاوم در برابر شرایط جوی و UV
محصولات مرتبط
محصولات مشابه
سوالات متداول
نظرات کاربران
ثبت نظر
ارسال نظر
ارسال پاسخ
×